Trilocale in vendita

Albiate, Via Italia
€ 130.000
3 locali 3 locali
86 Mq 86 Mq
1 bagno 1 bagno

Trilocale in vendita

Albiate, Via Italia

Descrizione annuncio

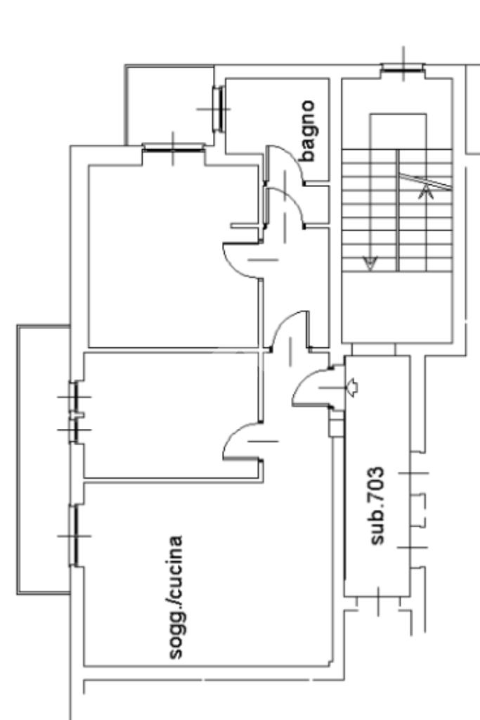
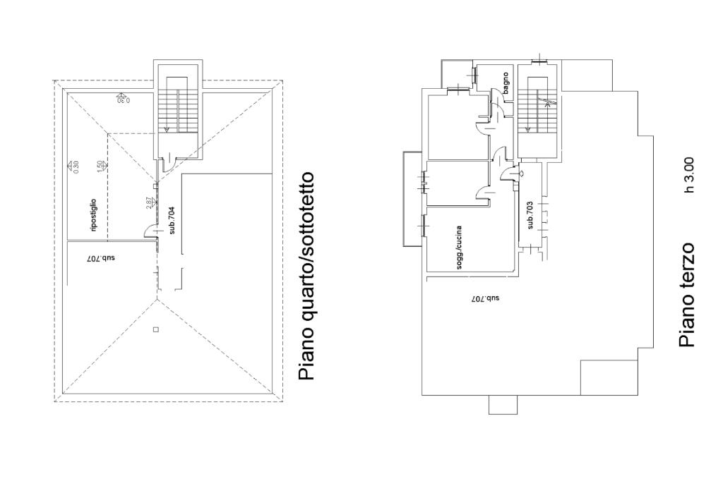
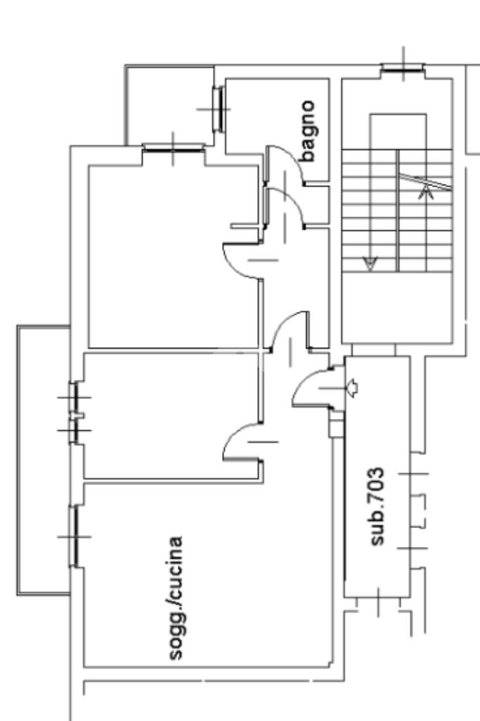
Nel cuore di Albiate, in contesto residenziale tranquillo e ben curato, proponiamo in vendita un elegante appartamento situato all’ultimo piano di una palazzina civile.

L’abitazione accoglie con una luminosa zona giorno, dove il soggiorno e la cucina abitabile si fondono armoniosamente creando uno spazio conviviale e funzionale, con affaccio diretto sul primo balcone, ideale per momenti di relax all’aria aperta.

La zona notte è composta da una spaziosa camera matrimoniale e da una comoda cameretta, entrambe con accesso al secondo balcone, che garantisce luminosità e una piacevole apertura verso l’esterno. Completano la zona servizi un pratico antibagno e un bagno ben organizzato.

La disposizione degli ambienti è studiata per offrire il massimo comfort abitativo, con spazi equilibrati e facilmente personalizzabili in base alle diverse esigenze familiari.

La posizione all’ultimo piano rappresenta un valore aggiunto, assicurando maggiore tranquillità, privacy e una piacevole vista panoramica sui dintorni.

L’immobile si inserisce in un contesto residenziale di categoria civile, caratterizzato da ordine e serenità, in una zona ben servita e comoda per i principali collegamenti.

A completare la proprietà troviamo una cantina e un ampio solaio, perfetti come spazi accessori per organizzare al meglio la casa.

Una soluzione ideale per chi desidera vivere in un ambiente confortevole, luminoso e ben collegato, senza rinunciare alla tranquillità di un contesto residenziale.

Mostra tutto

Nelle vicinanze

Trasporto pubblico Trasporto pubblico
Triuggio-Ponte Albiate
Triuggio-Ponte Albiate
1,0 Km
stazione di Macherio-Sovico
stazione di Macherio-Sovico
2,0 Km
Viale Lombardia, 4 (Albiate)
Viale Lombardia, 4 (Albiate)
130 m
Trasporto pubblico
240 m
Carate-Calò
Carate-Calò
2,0 Km
Ricariche auto elettriche Ricariche auto elettriche
Piazza Grandi
140 m
Scuole Scuole
Scuole
380 m
Scuola secondaria di 1° grado
380 m
Scuola Primaria Don Milani
1,1 Km
Scuola Primaria Paolo Borsellino
1,2 Km
Scuola Secondaria di Primo Grado Giuseppe Parini
1,6 Km
Farmacia Farmacia
Farmacia
70 m
Farmacia Negri
760 m
Lloyds Farmacia San Salvatore
2,1 Km
Farmacia di Macherio
2,3 Km
Farmacia Gatti
2,5 Km
Ospedali Ospedali
Dedalo Psicologia
680 m
Ospedale Vittorio Emanuele III
1,5 Km
Ospedali
2,3 Km
Bianalisi s.r.l. Analisi Mediche
2,4 Km
Supermercati Supermercati
Coop
60 m
Supermercati
1,3 Km
Conad
2,3 Km
Esselunga
2,4 Km
Iperal
2,6 Km
Negozi Negozi
Abbigliamento Fumagalli
180 m
Sanvito
180 m
Negozi
310 m
Civas Abbigliamento
850 m
Dal Prestiné Aliprandi
1,1 Km
Bar Bar
Bar
50 m
Vinyl Cafe
2,0 Km
Brianza Caffè
2,0 Km
Expo Cafè
2,2 Km
MOLTO Club & Restaurant
2,2 Km
Ristoranti Ristoranti
Trattoria Vecchia Brianza
80 m
Pizzeria San Fermo
90 m
Trattoria A la vegia manera
230 m
La Dispensa
270 m
Parco dei Principi
400 m
Mostra tutto

Caratteristiche

Rif.:
61189629
Piano:
3 di 4 (ultimo Piano)
Balconi:
2
Camere da letto:
2
Arredamento:
Parziale
Condizionamento:
Predisposizione impianto
Mostra tutto
Prezzo Prezzo
€ 130.000
Rata mutuo Rata mutuo
€ 620 / mese
Spese annue Spese annue
€ 800
Proponi il tuo prezzoProponi il tuo prezzo

Classe Energetica

F
F
F
F
F
F
F
F
F
EP globale non rinnovabile:
198.00 kW h/m² anno
EP globale rinnovabile:
3.74 kW h/m² anno
EP invernale del fabbricato:
EP estiva del fabbricato:
Anno di costruzione:
1970
Riscaldamento:
Autonomo
Tipo impianto:
A radiatori
Tipo alimentazione:
Metano

Ti interessa visionare l'immobile?

Fissa un appuntamento  Fissa un appuntamento

Richiedi informazioni

Clicca su Leggi per aprire l'informativa
* Questi campi sono obbligatori

Calcola il tuo mutuo

Semplice e senza impegno
Anticipo

( % )
Mutuo

( % )

pochi semplici passi

inserisci i tuoi dati
Questionario completato
Grazie per aver richiesto un appuntamento senza impegno con un nostro Consulente del Credito e Assicurativo.

Hai inserito correttamente tutti i dati necessari e a breve riceverai una e-mail con un link da convalidare per inviare i tuoi dati.
Affiliato
Tr.al.so. Sas
Via Italia, 17 20847 Albiate (MB)
Via Italia, 17 20847 Albiate (MB)
Zona: Albiate
Mostra su mappa
Orari: dal lunedì al venerdì 09:00-12:30 e 15:00-20:00; sabato 9.00-12.30 e 14:30-17:00
Affiliato
Tr.al.so. Sas
Via Italia, 17 20847 Albiate (MB)

2026 Tecnocasa Franchising S.p.A. - P. IVA 08365160152 - Via Monte Bianco 60/A 20089 Rozzano (MI). Ogni agenzia ha un proprio titolare ed è autonoma. Privacy policy | Policy utilizzo | Cookie policy