Trilocale in vendita

Albiate, Via Monfalcone
€ 390.000
4 locali 4 locali
165 Mq 165 Mq
2 bagni 2 bagni

Trilocale in vendita

Albiate, Via Monfalcone

Descrizione annuncio

Ad Albiate, in tranquilla zona residenziale, proponiamo ampio e luminoso appartamento su due livelli, ideale per chi desidera spazi comodi, comfort e privacy.

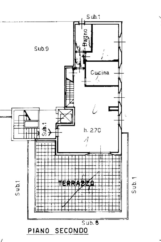
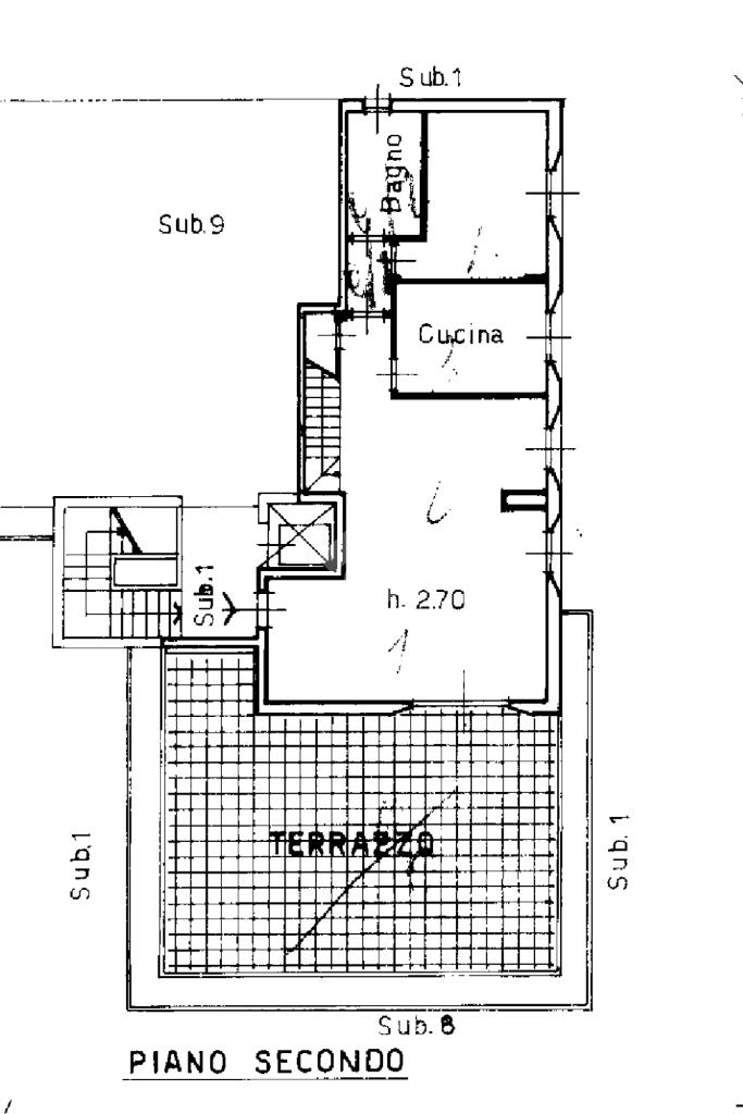
L’abitazione si trova al secondo ed ultimo piano di una palazzina servita da ascensore ed è caratterizzata da una distribuzione degli ambienti funzionale e accogliente.

L’ingresso si apre su un grande soggiorno con camino, perfetto per creare un’atmosfera calda e conviviale durante le stagioni più fredde, con accesso diretto al terrazzo, ideale per momenti di relax all’aperto. La cucina separata, spaziosa e ben organizzata, è perfetta per chi ama cucinare e vivere la casa. Sullo stesso livello troviamo una camera, un bagno e un comodo ripostiglio.

Salendo al piano superiore si sviluppa la zona notte, composta da due camere da letto luminose e ben dimensionate e un secondo bagno, offrendo così spazi ideali per una famiglia oppure per chi necessita di uno studio o di una stanza hobby.

L’immobile, di categoria civile, si presenta ristrutturato e pronto per essere abitato, garantendo solidità e comfort abitativo.

La posizione ad Albiate consente di vivere in un contesto tranquillo e riservato, con servizi, negozi e collegamenti facilmente raggiungibili.

Completano la proprietà:

due box singoli

cantina

Il riscaldamento autonomo permette una gestione indipendente dei consumi.

Una soluzione ideale per chi cerca una casa spaziosa, accogliente e pronta da vivere.

Mostra tutto

Nelle vicinanze

Trasporto pubblico Trasporto pubblico
Triuggio-Ponte Albiate
Triuggio-Ponte Albiate
1,1 Km
stazione di Macherio-Sovico
stazione di Macherio-Sovico
1,8 Km
Viale Lombardia, 4 (Albiate)
Viale Lombardia, 4 (Albiate)
120 m
Trasporto pubblico
350 m
Carate-Calò
Carate-Calò
2,3 Km
Ricariche auto elettriche Ricariche auto elettriche
Piazza Grandi
260 m
U2 Supermercato Biassono | EnelX
3,0 Km
Scuole Scuole
Scuole
410 m
Scuola secondaria di 1° grado
440 m
Scuola Primaria Don Milani
940 m
Scuola Primaria Paolo Borsellino
1,2 Km
Scuola Secondaria di Primo Grado Giuseppe Parini
1,4 Km
Farmacia Farmacia
Farmacia
250 m
Farmacia Negri
910 m
Lloyds Farmacia San Salvatore
2,0 Km
Farmacia di Macherio
2,0 Km
Farmacia Gatti
2,7 Km
Ospedali Ospedali
Dedalo Psicologia
580 m
Ospedale Vittorio Emanuele III
1,8 Km
Ospedali
2,6 Km
Bianalisi s.r.l. Analisi Mediche
2,6 Km
Supermercati Supermercati
Coop
320 m
Supermercati
1,4 Km
Esselunga
2,2 Km
Conad
2,5 Km
LD Market
2,6 Km
Negozi Negozi
Sanvito
200 m
Negozi
270 m
Abbigliamento Fumagalli
360 m
Civas Abbigliamento
960 m
Dal Prestiné Aliprandi
1,2 Km
Bar Bar
Bar
100 m
Vinyl Cafe
1,9 Km
MOLTO Club & Restaurant
2,2 Km
Feel
2,2 Km
Brianza Caffè
2,3 Km
Ristoranti Ristoranti
La Dispensa
50 m
Trattoria Vecchia Brianza
260 m
Pizzeria San Fermo
350 m
Trattoria A la vegia manera
500 m
Parco dei Principi
590 m
Mostra tutto

Caratteristiche

Rif.:
61185068
Piano:
2 di 3 con ascensore (ultimo Piano)
Box:
2
Terrazzi:
1
Camere da letto:
3
Arredamento:
Parziale
Mostra tutto
Prezzo Prezzo
€ 390.000
Rata mutuo Rata mutuo
€ 1.860 / mese
Proponi il tuo prezzoProponi il tuo prezzo

Classe Energetica

G
G
G
G
G
G
G
G
G
EP globale non rinnovabile:
200.00 kW h/m² anno
EP globale rinnovabile:
0.00 kW h/m² anno
EP invernale del fabbricato:
EP estiva del fabbricato:
Anno di costruzione:
1993
Riscaldamento:
Autonomo
Tipo impianto:
A radiatori
Tipo alimentazione:
Metano

Ti interessa visionare l'immobile?

Fissa un appuntamento  Fissa un appuntamento

Richiedi informazioni

Clicca su Leggi per aprire l'informativa
* Questi campi sono obbligatori

Calcola il tuo mutuo

Semplice e senza impegno
Anticipo

( % )
Mutuo

( % )

pochi semplici passi

inserisci i tuoi dati
Questionario completato
Grazie per aver richiesto un appuntamento senza impegno con un nostro Consulente del Credito e Assicurativo.

Hai inserito correttamente tutti i dati necessari e a breve riceverai una e-mail con un link da convalidare per inviare i tuoi dati.
Affiliato
Tr.al.so. Sas
Via Italia, 17 20847 Albiate (MB)
Via Italia, 17 20847 Albiate (MB)
Zona: Albiate
Mostra su mappa
Orari: dal lunedì al venerdì 09:00-12:30 e 15:00-20:00; sabato 9.00-12.30 e 14:30-17:00
Affiliato
Tr.al.so. Sas
Via Italia, 17 20847 Albiate (MB)

2026 Tecnocasa Franchising S.p.A. - P. IVA 08365160152 - Via Monte Bianco 60/A 20089 Rozzano (MI). Ogni agenzia ha un proprio titolare ed è autonoma. Privacy policy | Policy utilizzo | Cookie policy